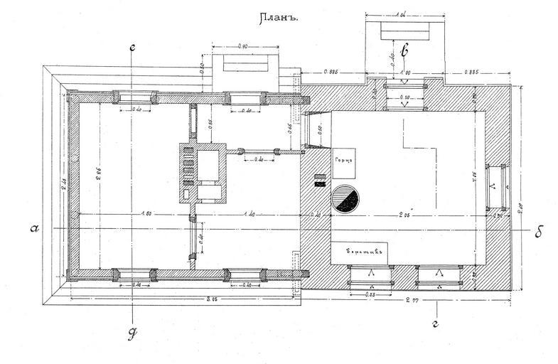
MAKE A MEME View Large Image Водоподъемное здание. Котлас. Чертежи (02).jpg ru Че тежи типового водоподъемного здания ветки Пе мь-Вятка-Котлас Одно из таких зданий ...
View Original:Водоподъемное здание. Котлас. Чертежи (02).jpg (2376x1549)
Download: Original    Medium    Small Thumb
Courtesy of:commons.wikimedia.org More Like This
Keywords: Водоподъемное здание. Котлас. Чертежи (02).jpg ru Че тежи типового водоподъемного здания ветки Пе мь-Вятка-Котлас Одно из таких зданий было пост оено в Котласе 1899 год п име но Альбом че тежей типовых ст оений железнодо ожной ветки Пе мь-Вятка-Котлас Инжене ы-п оекти овщики other versions Custom license marker 2015 06 28 PD-RusEmpire Uploaded with UploadWizard Pumphouses in Kotlas
Terms of Use   Search of the Day